除濕機廠家
微信:133-6050-3273
手機:133-6050-3273
郵箱:
地址:廣東深圳坪山區青松西路8號鴻合科技園

在我們生活中除了常見的灰塵、煙塵之外,在室內空氣中還有很多我們所不易察覺的花粉、煤塵、煙塵以及其他的粉塵,這些粉塵如果過多的吸入人體的話,就會導致呼吸系統出現一些不良反應,特別是敏感體質的人在吸入粉塵后容易引起過敏,空氣凈化器可以有效地吸附凈化灰
了解詳情
消毒液霧化機,微米級干霧消毒液霧化器新聞資訊自古以來,人類就與各種傳播疾病的媒介一微生物、細菌、病毒等進行著堅持不懈的斗爭。消毒技術是其中的一種重要手段。消毒效果的好壞,取決于消毒人員、消毒器械、消毒劑(藥液)、消毒的對象四位一體的有機結合。消毒器械是使用
了解詳情
消殺超級細菌變異病毒過氧化氫干霧滅菌機:人類生病的原因是感染了細菌病毒,不管是普通的傷風感冒,還是各種疑難雜癥,具體到最后都是各種細菌病毒引起的。直到現代醫藥科技不斷發展,抗生素的出現讓人類跟細菌病毒的戰斗才取得階段性的勝利。在古代戰爭中因為傷口感染會導致大量的士兵死亡,但是二戰中青霉素的出現,讓傷...
了解詳情
消失模烘干除濕機,消失模烘干房加熱除濕一體機新聞資訊:近年來,隨著人們環保意識的不斷增強,國家對環保問題的日益重視,對鑄造行業的環保要求也在逐年的提高;毫無疑問,綠色鑄造已成為未來鑄造行業的發展趨勢;那么,什么是綠色鑄造?據了解,具有投資少、且生產過程無污染的消失模鑄造工藝,就是一種非常節能環保的綠...
了解詳情
消失模白模烘干機,模具烘干不開裂技術動態據了解,消失模鑄件具有精度高、質量好,成本低;以及鑄件表面光潔,減少了清理環節,大大節省了機械加工量。為此,消失模鑄造被廣泛應用于鑄鋼、鑄鐵、鑄銅、鑄鋁等各種材質、各種結構的鑄件;采用可發性聚苯乙烯泡沫白模澆注鑄件的工藝過程
了解詳情
消失模烘干設備,消失模烘干方法技術動態從事消失模鑄造行業的人都知道,在消失模鑄造加工過程中的涂料烘干會直接影響工廠的效率和成品的質量。為了加快用于大型模具的水溶性涂料的干燥速度,生產上的簡便消失模烘干方法是將刷有涂料的消失模模具放
了解詳情
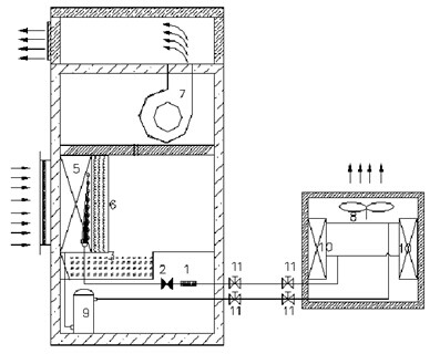
安詩曼ASM-8240G消失模烘干除濕機及安詩曼高配置系列升溫加熱烘干除濕一體機技術參數:安詩曼ASM-8240G消失模烘干除濕機及安詩曼高配置系列升溫加熱烘干除濕一體機可以在消失模烘干過程中快速去除濕氣,有效降低烘干房濕度;通常,只要將烘干房內濕度度控制在30%RH左右;同時保證烘干房內溫度在50...
了解詳情
眾所周知,在國內很多鑄造廠的加工生產中,消失模鑄造工藝的應用是極為廣泛的;據了解,在消失模鑄造中,影響鑄件質量、尺寸精度的因素是多方面的,比如消失模鑄件本身的結構、形狀、大小,泡沫塑料質量的影響,涂料涂層的影響,消失模烘干的影響以及鑄造過程中造型、澆注環節的影響等。在消失模鑄造工藝中,整個工藝流程包...
了解詳情
消失模涂料烘干設備,消失模涂料烘干房除濕機技術動態從事消失模鑄造行業的人都知道,在消失模鑄造生產中,模樣涂掛涂料后的干燥工序,是關系到鑄件產品質量和成本的一個重要環節,必須充分干燥才能澆注。而烘干消失模模樣需要消耗大量的熱量,還需要較長的時間,模樣每次涂掛涂料后,通常需干燥24~72h。現有的方法是...
了解詳情
消失模烘干機,消失模烘干注意要點:消失模鑄造是現在精密鑄造的主要工藝,由于使用的是石蠟、泡沫以及水性硅溶膠等熔點很低的材料來制作模具,所以在鑄造過后就會消失,因此而得名。既然熔點低,那么就需要在這些模具的表面噴涂耐高溫材料,這些耐高溫材料在烘干后再能進行鑄造,否則的話是不行了。這層涂料的作用就是避免...
了解詳情
消失模澆注反噴分析消失模涂層烘干機:消失模鑄造是一種新型鑄造工藝,跟傳統鑄造工藝相比,產品精密度高,后期加工少,更加環保清潔,深受鑄造業的喜愛,是現在國內的精密鑄造業用的主要澆注工藝。反噴是在消失模澆注的時候出現的一種影響產品質量甚至是危及工人生命危
了解詳情
消失模模具烘干房除濕機,干得快、不開裂、成本低、更環保!【技術動態】眾所周知,消失模鑄造,又稱實型鑄造。現如今,隨著消失模的應用領域不斷擴大,消失模鑄造技術的優勢體現的越來越明顯。由于經此技術鑄造出來的鑄件精度高、加工余量小、內部質量好、成本低;為此,近年來越來越多的中小鑄造廠紛紛引進了消失模鑄造技...
了解詳情
消失模模樣干燥房除濕機,消失模模樣干燥方法技術動態據了解,消失模模樣干燥的能耗是整個消失模鑄造過程中能耗的一個重要部分。在某一地域影響模樣干燥的因素主要取決于干燥室的濕度、溫度和干燥室內空氣對流的速度。相對較低的濕度和適當的溫度以及室內快的風速有利于模樣的干燥。適用于中小鑄造車間的消失模模樣干燥室、...
了解詳情
涂裝專用除濕機,有機的結合了冷凍除濕與轉輪除濕兩種除濕方式,是設計先進、運行經濟的四季智能型空氣處理設備。隨著我國工業的快速發展,在船舶制造、汽車制造、鋼結構制造等眾多行業對產品的涂裝要求越來越高,涂裝專用除濕機出開始得到
了解詳情
調溫除濕機用蒸發器來給空氣降溫除濕,并回收系統的冷凝熱,彌補空氣中因為冷卻除濕時散失的熱量,是一種高效節能的除濕方式,已經廣泛應用于國防工程、人防工程、煙草及石化行業、地鐵車站、航天領域凈化工程、實驗室、電訊器材室、檔案室、食品房、制藥或膠片車間、特種玻璃制造、糧食、木材等的除濕干燥和高濕空間的除濕...
了解詳情
涂裝車間除濕機,汽車涂裝車間除濕方案新聞資訊報道:在汽車車身的制作過程中,涂裝工藝是其中較為重要的工序之一;而涂裝質量的好壞與車間環境內部的溫濕度,潔凈度等因素有著直接的關系,而其中在很大程度上取決于車間環境空氣濕度的變化。要保證
了解詳情
產品的外觀質量不僅反映了產品的保護和裝飾性能,也是構成產品價值的重要因素,噴涂過程中如果溫度和濕度控制不好,次品率會增高,生產效率會下降,給企業帶來不小的損失,涂裝車間應如何配置溫濕度設備?噴砂和噴涂是最常用的涂裝方法,這些方法有效地解決了金屬表面的氧化問題。A的方法是使用轉輪除濕機來控制涂層環境中...
了解詳情
涂裝車間加濕器,涂裝廠車間加濕設備新聞資訊:在全國各大汽車制造企業中涂裝車間是必不可少的,涂裝作業是汽車車身制作過程中的一項重要工序,決定了車身整體外觀的品質!而涂裝質量的好壞,除了與被涂物表面處理質量、
了解詳情
傳統家私廠噴漆作業一般都在露天進行,但在進行噴漆過程中會把粉塵、雜質等混合在油漆里,且噴漆還會弄臟地上,污染環境;噴漆人員也會吸入許多油漆霧,而當今設備對家私出產的請求越來越高,家私廠為了確保出產出高質量的實木家私商品及在出產過程中保護環境不受污染,必須建造一個現代化、自動化、
了解詳情
涂裝車間干霧加濕器確保漆面光滑靚麗:涂裝跟噴涂是同一回事,簡單的說就是給物體表面噴涂漆料,起到防腐的作用,當然了也可以讓物體表面更加美觀,在家具、汽車、空調等行業都有很大的作用。要想涂裝表面光滑不起泡,那么空氣中的灰塵顆粒需要控制好,因為只要直徑超過10微米的顆粒就可以在涂裝表面形成可見顆粒,導致漆...
了解詳情